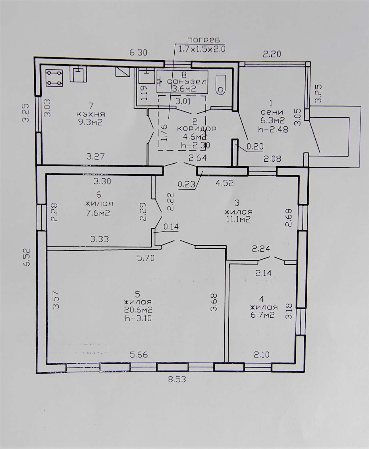
Продаётся жилой деревянный дом в г. Гомель, по улице Бочкина, 7. Общая площадь дома позволяет комфортно разместить несколько изолированных комнат, что подходит для семьи любого состава. Дом находится в жилом состоянии с косметическим ремонтом: стены оформлены обоями, потолки окрашены, полы деревянные с покрытием, однако требуется обновление отделочных материалов для полного восстановления интерьера.
Отопление в доме газовое, установлен современный газовый котёл марки «Альфа Калор», что обеспечивает эффективное и экономичное обогревание помещений в холодное время года. В дополнение к газовому отоплению в кухне предусмотрено печное отопление, создающее дополнительный комфорт и уют. Окна пластиковые (ПВХ), что улучшает тепло- и звукоизоляцию дома.
Санузел совмещённый, оборудован ванной, унитазом и раковиной, стены ванной комнаты облицованы плиткой, что облегчает уход за помещением. Кухня просторная, оборудована необходимой мебелью и сантехникой, что позволяет сразу использовать её по назначению.
Участок ухожен, на территории расположены хозяйственные постройки, включая сарай и баню, а также зелёные насаждения и цветники, создающие приятную атмосферу и возможность для организации отдыха на свежем воздухе. Дом расположен в удобном районе города с развитой инфраструктурой, что обеспечивает доступность магазинов, школ и транспорта.
Дом подходит для проживания с возможностью дальнейшего ремонта и улучшения интерьера по вашему вкусу.
Звоните для организации просмотра и получения дополнительной информации.
